VERKAUF & VERMIETUNG
Telefon: +49 (341) 9 10 48 99
Toggle navigation
Home
Angebote
Kontakt
Verwaltung
Großzügig & stilecht: Stuck, Parkett, Tageslichtbad
PDF
Drucken
Hauptmannstraße 10 | 04109 Leipzig
Objekt ID
A 5691
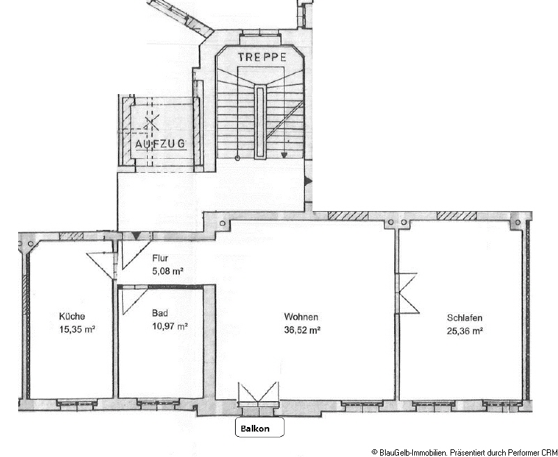
Wohnfläche ca.:
90,38 m²
Zimmer:
2,0
Baujahr:
1900
Zustand:
Vollrenoviert
Altbau
✓
Warmmiete:
1.445,00 €
Nebenkosten:
290,00 €
Heizkosten:
in Nebenkosten enthalten
Kaution:
3.465,00 €
Ausstattung
☑
Tageslichtbad
☑
Wanne + Dusche
☑
Einbauküche
☑
Fliesenboden
☑
Parkettboden
☑
Zentralheizung
☑
Gasbefeuerung
☑
Personenaufzug
☑
Gartennutzung
☑
Rollstuhlgerecht
☑
DV-Verkabelung vorhanden
☑
Keller
Objektbeschreibung
Dieses historische Stadtpalais in Nähe des Elster/Pleiße Arm lädt ein zum Arbeiten und Wohnen in ungewöhnlichem Ambiente.
Das Objekt, welches ausgesprochen stilecht und liebevoll saniert wurde, besticht durch großzügige und helle Wohnungen.
Als Mieter werden Sie gern nach einem anstrengenden Tag, bei einem entspannenden Spaziergang am Wasser und durch den riesigen Park, welcher sich fast vor´m Gartentor befindet, die Seele baumeln lassen.
Die hier nun zur Vermietung stehende Wohnung verfügt über Ausstattungsmerkmale, wie z. B.:
- Echtholzparkett, in Fischgrat mit Fries verlegt
- zwei großzügige Wohnräume, mit tollem Deckenstuck
- modernes, großzügiges Tageslichtbad mit bodengleicher Walk-In -Dusche (Fotos folgen)
- stilechte Originalinnentüren
- Wohnküche
- elt. Außenrolladen
Selbstverständlich verfügt das Objekt über einen Fahrstuhl.
Im Hof stünde für Sie ein Pkw-Stellplatz zur optionalen Anmietung zur Verfügung (Kosten mtl.: 80,00 €)
Großzügig & stilecht: Stuck, Parkett, Tageslichtbad
Lage
Gründerzeitflair im Musikviertel - Zentrum West
Für Leipzigs Baugeschichte gibt es Zeugen aus neun Jahrhunderten mit rund 15.000 denkmalgeschützten Bauten, unter denen die Epoche des Wilhelminischen Kaiserreiches mit etwa 12.500 Gebäuden dominiert. Leipzig war zu dieser sogenannten Gründerzeit eine der reichsten Städte Deutschlands und als Messe-, Handels- und Industriestadt berühmt, in der nicht nur Bücher gedruckt, sondern auch Maschinen aller Art erfunden und gebaut wurden. Dieser Reichtum ließ in der Gründerzeitepoche von 1870 bis 1918 architektonische Meisterwerke entstehen. Keine andere Stadt hat einen derartig reichen Bestand aus dieser Epoche aufzuweisen.
Leipziger Musikviertel - Zentrum West,
Zwischen 1880 und 1900 entstand nach langer, sorgsam durchgestalteter Planung das attraktive Leipziger Musikviertel mit seinen großzügigen Alleen und reichhaltigen Baumbestand.
Um die monumentalen Bauten des ehemaligen Reichsgerichts (heute Bundesverwaltungsgericht), dem Königlichen Konservatorium (heute Hochschule für Musik), der Universitätsbibliothek und Kunstgewerbeschule (heute Hochschule für Grafik und Buchkunst) gruppieren sich neben einer Vielzahl weiterer Hochschulen, repräsentative Wohnbauten in beeindruckender, gründerzeitlicher Baukunst.
Die großzügigen Grünanlagen des Clara-Zetkin-Parks und die idyllische Ruhe laden jederzeit zu einem Spaziergang ein. Der an der Elster gelegenen Kulturpark umfasst den König-Albert-Park, den Johanna-Park, den Palmengarten und die südlich angrenzende Pferderennbahn.
sonstige Angaben
Baujahr: 1900
Befeuerung/Energieträger: Gas
Heizungsart: Zentralheizung
Die in diesem Exposé angegebenen Wohn- und Nutzflächen sowie die Informationen zum Objekt beruhen auf keinem eigenen Aufmaß, sondern beruhen auf Angaben Dritter.
Für die Richtigkeit der Angaben übernehmen wir keine Gewähr und sichern diese Eigenschaft nicht zu.
Alle weiteren Angaben nach bestem Wissen.
Irrtum und Zwischenverkauf/Zwischenvermietung
No Coordinations found.
BlauGelb-Immobilien e.K.
Makler/Immobilienvermittlung
Anton-Zickmantel-Str. 22
04249 Leipzig
Telefon: (03 41) 9 10 48 99
Telefax: (03 41) 9 10 48 98
E-Mail:
jk@blaugelb-immobilien.com
www.blaugelb-immobilien.com
Teilen Sie uns Ihr Anliegen mit:
Name
Adresse
E-Mail
Telefonnummer
Betreff
Ihre Anfrage
Ich habe die
Datenschutzerklärung
zur Kenntnis genommen. Ich stimme zu, dass meine Angaben zur Kontaktaufnahme und für Rückfragen dauerhaft gespeichert werden. Hinweis: Sie können Ihre Einwilligung jederzeit für die Zukunft per Mail an widerrufen.
Sicherheitscode
SENDEN
Wir sind Mitglied im
Home
Impressum
Datenschutz