VERKAUF & VERMIETUNG
Telefon: +49 (341) 9 10 48 99
Toggle navigation
Home
Angebote
Kontakt
Verwaltung
Helle Wohnung für Paar oder junge Familie
PDF
Drucken
Kurt-Eisner-Straße 67 | 04275 Leipzig
Objekt ID
A 5659
Wohnfläche ca.:
80,00 m²
Zimmer:
3,0
Baujahr:
1905
Zustand:
Vollrenoviert
Altbau
✓
Warmmiete:
1.120,00 €
Nebenkosten:
360,00 €
Heizkosten:
in Nebenkosten enthalten
Heizkosten:
240,00 €
Kaution:
2.280,00 €
Ausstattung
☑
Fliesenboden
☑
Parkettboden
☑
Etagenheizung
☑
Gasbefeuerung
☑
Gartennutzung
☑
Keller
Objektbeschreibung
Bei diesem Objekt handelt es sich um ein saniertes Mehrfamilienhaus aus der Gründerzeit. Es liegt im oberen, östlichen Teil der Kurt-Eisner-Straße, Nähe MDR.
Die Ausstattung der Wohnung ist ansprechend und gut.
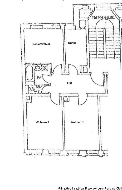
Sie bietet Echtholzparkettfußboden in allen Räumen, hell gefliestes Bad mit Badewanne.
Durch die Südausrichtung der beiden straßenseitigen Zimmer erhält die Wohnung ausgesprochen viel Licht. Stuck, Originalinnentüren erinnern an den Stil der Gründerzeit.
Die Wohnung verfügt über Gasetagenheizung (Flüssiggas), hierfür ist ein monatlicher Betrag von ca. 160 € (Gas, bei der Annahme von 2,00 € / m² WFL) einzuplanen, welcher an einen Versorger Schaar Flüssiggas direkt zu zahlen ist.
Der an den Vermieter zu zahlende monatliche Mietbetrag setzt sich wie folgt zusammen:
760,00 € Grundmiete
200,00 € kalte Betriebskosten (inkl. Wasser, Müll, usw.)
= 960,00 € Gesamtmiete OHNE Heizkosten
Helle Wohnung für Paar oder junge Familie
Lage
Das Wohngebiet aus einer Mischung von gut erhaltenen, gutbürgerlichen Gründerzeithäusern und sanierungsbedürftiger Altbausubstanz grenzt direkt an das Stadtzentrum. Teile des Stadtparks, der südliche Auewald, die Pferderennbahn Scheibenholz, unweit der Cospudener See bzw. Belantis-Vergnügungspark haben für den Stadtteil einen hohen Erholungswert.
Viele Hoch- und Fachschulen sowie Einrichtungen der Universität Leipzig (1409 gegründet, zweitälteste Universität Deutschlands) befinden sich im südlichen Teil der Stadt.
Hauptmagistrale: Karl-Liebknecht-Straße.
In unmittelbarer Nähe finden Sie alle Bereiche des täglichen Bedarfs (z. B. Einkaufsmöglichkeiten, Arztpraxen, Apotheken, Kindergrippen und Schulen) sowie Freizeitmöglichkeiten. Die Infrastruktur ist gut, die öffentlichen Verkehrsmittel sind schnell zu erreichen.
sonstige Angaben
Baujahr: 1905
Heizungsart: Etagenheizung
Die in diesem Exposé angegebenen Wohn- und Nutzflächen sowie die Informationen zum Objekt beruhen auf keinem eigenen Aufmass, sondern beruhen auf Angaben Dritter. Für die Richtigkeit der Angaben übernehmen wir keine Gewähr und sichern diese Eigenschaft nicht zu. Alle weiteren Angaben nach bestem Wissen.
Irrtum und Zwischenverkauf/Zwischenvermietung vorbehalten. Die Weitergabe an Dritte ist ohne unsere Zustimmung nicht gestattet und schadenersatzpflichtig. Sollte Ihnen unser Angebot bereits bekannt sein, bitten wir innerhalb einer Woche um Rückgabe unseres Exposés und Angabe wie und zu welchem Zeitpunkt Sie anderweitig Kenntnis von oben genanntem Objekt erhalten haben. Nebenabreden bedürfen grundsätzlich der Schriftform.
No Coordinations found.
BlauGelb-Immobilien e.K.
Makler/Immobilienvermittlung
Anton-Zickmantel-Str. 22
04249 Leipzig
Telefon: (03 41) 9 10 48 99
Telefax: (03 41) 9 10 48 98
E-Mail:
jk@blaugelb-immobilien.com
www.blaugelb-immobilien.com
Teilen Sie uns Ihr Anliegen mit:
Name
Adresse
E-Mail
Telefonnummer
Betreff
Ihre Anfrage
Ich habe die
Datenschutzerklärung
zur Kenntnis genommen. Ich stimme zu, dass meine Angaben zur Kontaktaufnahme und für Rückfragen dauerhaft gespeichert werden. Hinweis: Sie können Ihre Einwilligung jederzeit für die Zukunft per Mail an widerrufen.
Sicherheitscode
SENDEN
Wir sind Mitglied im
Home
Impressum
Datenschutz